ディスク式水門制限開閉器 NC3000シリーズ
概要
ダム、河川、用水路等の水門巻上機に設置して、ゲートの運転制御を行う高精度リミットスイッチボックスです。
本器は入力軸を回転させるとギヤーを介してディスク(円板)上の円弧粗カム(1回転カム)及び同カム円周上を多回転する遊星精カム(多回転カム)が回転し各々リミットスイッチをON、OFFさせる構造となっています。
遊星精カムリミットスイッチはフルストロークで1回しか動作しません。
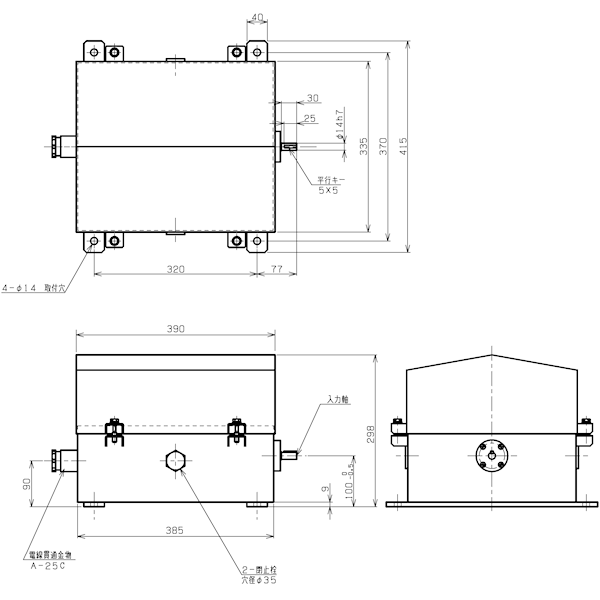
外観

特徴
- 長スパンでも高い検出精度が得られます。
- 調整はすべて上面からできますので調整上の死角がありません。
- 検出位置は任意に設定できます。
- 最大6組の接点信号を出力できます。
- すべて機械的に行っていますので高い信頼性が得られます。
- ヒステリシスが極小です。
- 屋外据置防雨構造です。
- 電線引出口は使いやすく3ケ所から選べます。(現場で取付位置を変更できます)
仕様
| 入力回転条件 | 90~100rev/(フルストローク) | ||
|---|---|---|---|
| 摩擦トルク | 39N (4kg・f-cm) 以下 | ||
| 許容回転数 | 300rpm | ||
| 入力軸強度 | 許容ラジアル荷重…147N (15kg-f) 許容スラスト荷重…98N (10kg-f) |
||
| 本体構造 | 屋外据置防雨構造 鉄板またはSUS製(オプション) |
||
| 接点仕様 | 接点容量 | AC250V, 10A(抵抗負荷) | |
| 多回転カム (精)用接点 | 最大3個 | ||
| 接点精度 | ±0.025%以下 (フルストロータに対して) ±1cm以下 (計測40m時) |
||
| ヒステリシス | 0.08%以下 (フルストロークに対して) 3.2cm以下 (計測40m時) |
||
| 接点動作巾 | 2.2rev±10% (入力軸において) | ||
| 一回転カム (粗)用接点 | 最大3個 | ||
| 接点精度 | ±0.15%以下 (フルストロークに対して) ±6cm以下 (計測40m時) |
||
| ヒステリシス | 0.9%以下 (フルストロークに対して) 36cm以下 (計測40m時) |
||
| 接点動作巾 | 標準1 3rev±10% (入力軸において) | ||
| リミットスイッチ | 使用リミットスイッチ形式 | Z-15GQ22A55-B5V (OMRON製) | |
| 電気的性能 | 耐電圧 AC1,000V 1分間 出力端子~ケース間 絶縁抵抗 DC500V 10MΩ以上 出力端子~ケース間 |
||
| 周囲条件 | 温度… -15~+15℃ 相対湿度… 30~90% (但し結露しないこと) |
||
| 外観標準塗装色 | マンセル5Y7/1.5半ツヤ メラミン焼き付け仕上 | ||
| 外形寸法(n) | 390×330×300 | ||
| 重量 | 約32kg | ||
外形図


