メッセンジャーワイヤー式ゲート開度計 LT2700シリーズ
概要
最先端テクノロジーにより実現した高精度型メッセンジャーワイヤー式水門用開度計です。
高揚程の水門開度を直接メッセンジャーワイヤによって高精度に計測可能な電動ウェイト式親子ドラム開度計です。
取水ゲートドラムのようなゲート開度が20m~60mの高揚程ゲートはゲート巻上機のワイヤーが2層~3層巻になるため巻上機のモータ軸では精度の高い開度検出はできないためメッセンジャーワイヤーによる扉体直接検出による高精度な開度検出が望ましいとされております。
従来の高揚程ゲートの扉体直接開度検出は、不安定なトルクモータ式や巨大な検出機構による親子ドラム式及びゲート巻上機と連動した複雑で特殊な開度検出方式が採用されてましたが、LT2700シリーズ開度計はこのような欠点を排除しています。
新設の水門のみならず従来の開度計に不満な既設ゲートの開度検出機構の改良にご使用ください。
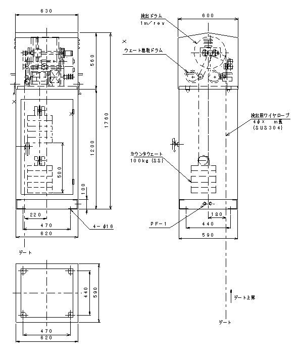
外観

特徴
- 独自の技術により、高精度でコンパクトな開度検出を実現した当社フラグシップモデルの開度計です。
- APCメカニズムにより常にカウンターウェートを最適な位置にコントロールしメッセンジャーワイヤの張力を一定にして安定した高い検出精度を確保。
- メッセンジャーワイヤーには直径4mmのワイヤーを採用したことで伸張が少なく高精度です。
- A/D-RSコンバータ、シンクロ発信機等の各種信号変換器を内蔵する事が出来ますので遠隔計測用開度発信器として最適です。
さらにダイアル式目盛でゲ-ト開度を直接指示する機側指示機構も内蔵できます。
仕様
| 計測範囲 | 0~40m/FS、0~56m/FS、0~70m/FS | ||
|---|---|---|---|
| 検出精度 | ±0.1%/検出ドラムFS | ||
| 電源 | AC100V 50/60Hz 100VA以下 | ||
| 周囲条件 | 周囲温度 | -10℃~+45℃ | |
| 相対湿度 | 30%~90% | ||
| 機械的性能 | 追従速度 | 1m/分 | |
| 検出ワイヤー | Φ4 SUS | ||
| ワイヤー張力 | 約8kg/40m計、約10kg/56m計、約12kg/70m計 | ||
| 電気的性能 | 絶縁耐圧 | AC1,000V 1分間 (AC電源端子-筐体間) | |
| 絶縁抵抗 | DC500V 10MΩ (AC電源端子-筐体間) | ||
| 出力信号 | 精・粗の2速度シンクロ信号 または 1m/rev のシンクロ信号 |
||
| 4桁 BCD-P 無電圧a接点出力 | |||
| 開度異常 (電源断& 無電圧a接点出力) | |||
| 内蔵機器の仕様 | 信号変換器 | シンクロ発信機 23TX形2台 または86G形相当1台 | |
| RS-A/Dコンバータ 4桁+専用アレスタ 1式 | |||
| 端子台 | 最大30P迄の必要数 (端子ネジM3~M4) | ||
| 構造 | 鉄板製防雨形自立盤 | ||
| 本体重量 | 約220kg、270kg、320kg 但しカウンタウェイトは除く |
||
| 付属品 | カウンタウェイト | 40m計 | 約80kg…1個 |
| 56m計 | 約100kg…1個 | ||
| 70m計 | 約120kg…1個 | ||
| メッセンジャワイヤ | 40m計 | φ4×55m | |
| 56m計 | φ4×70m | ||
| 70m計 | φ4×85m | ||
| その他 | 塗装 | アクリル系樹脂焼付塗装 | |
| 塗装色 | マンセル5Y7/1半ツヤ | ||
外形図


